top of page

Winkley

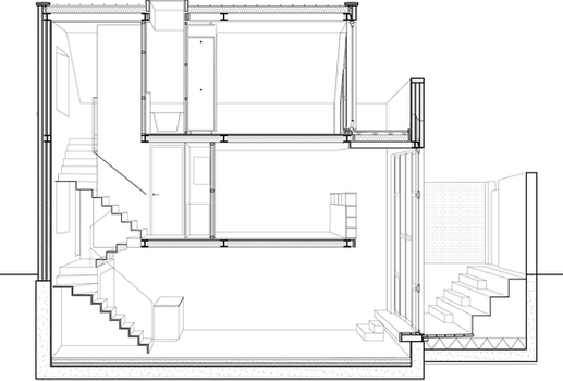
A former upholstery workshop is transformed into a two-bedroom home that belies the constraints of the site.

Category:

Residential

Materials:

Brick, zinc, powdercoated steel plate, american black walnut, porcelain

Status:

2014

Please contact
fiona@fionamorgan.au

bottom of page